Praxis Kohlgasse
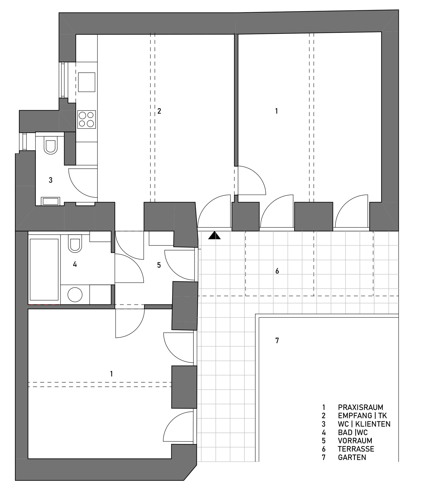
Let's talk! Die kleine Altbauwohnung wurde von uns generalüberholt und renoviert und wird nun als gemütlich-charmante Gemeinschaftspraxis von verschiedenen Psychotherapeuten genutzt.
Praxis: isabellekoehler, Fotos: studiokoekart
Let's talk! Die kleine Altbauwohnung wurde von uns generalüberholt und renoviert und wird nun als gemütlich-charmante Gemeinschaftspraxis von verschiedenen Psychotherapeuten genutzt.
Praxis: isabellekoehler, Fotos: studiokoekart